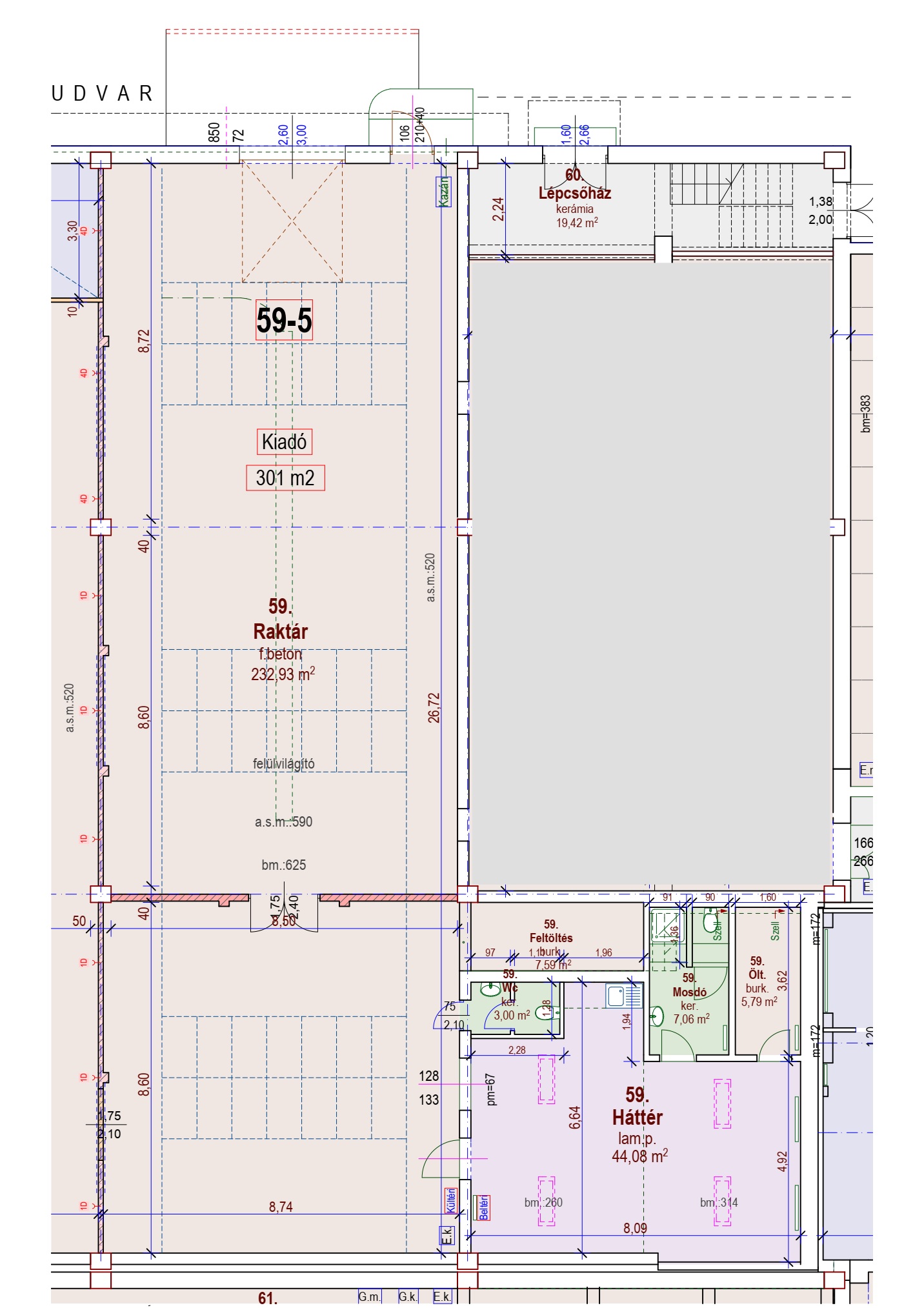
301 m² - Multifunkcionális
Leírás
Természetes megvilágítású, nagy belmagasságú fűthető csarnoktér.
Kiadó multifunkcionális üzlet- raktár helyiség az Üzleti Központ VIII. épület északi oldalán. Felülvilágítós, 6 m belmagasságú világos tér 9x9 m pillérkiosztással. Alkalmas bemutatóteremnek is. Saját vizesblokk és teakonyha háttér helyiség kialakítva.
Megközelíthető a Szentendrei út felől a 3. kapun vagy a Reményi Ede utca felől a 4. kapun keresztül.
Érezte már, hogy egy jó lokáció megkönnyíti az életét?
Itt minden adott az üzleti tevékenységéhez, sőt még a szabadidő eltöltéséhez is. 500 férőhelyes parkoló, éttermek, kávézók, bio- és gluténmentes pékségek, nyomdák, papír-, írószer, villamosság, ruházat, könyvelőiroda, kommunikációs és média ügynökségek, dizájn és egyéb boltok, képzőművészeti galéria, fotóstúdió és sport. Tömegközlekedve és személygépkocsival is jól megközelíthető. Elképesztő lehetőségek üzleti szinergia kialakítására jól menő cégek között, impozáns környezetben.
Forduljon hozzánk bizalommal! Kollégáink igény szerint állnak rendelkezésére, hogy ideális bérleményt találjon nálunk reális áron.
Telefon: +36309962962
| Azonosító: | PP59-5-301m2 |
| Terület (m2): | 301 |
| Funkció: | Multifunkcionális |
| Állapot: | Átlagos |
| Fekvés: | É |
| Akciós: | |
| Kiadva: | |
| Terület: | 300 m2 felett |
| Golipark ajánlatban szerepel: |










