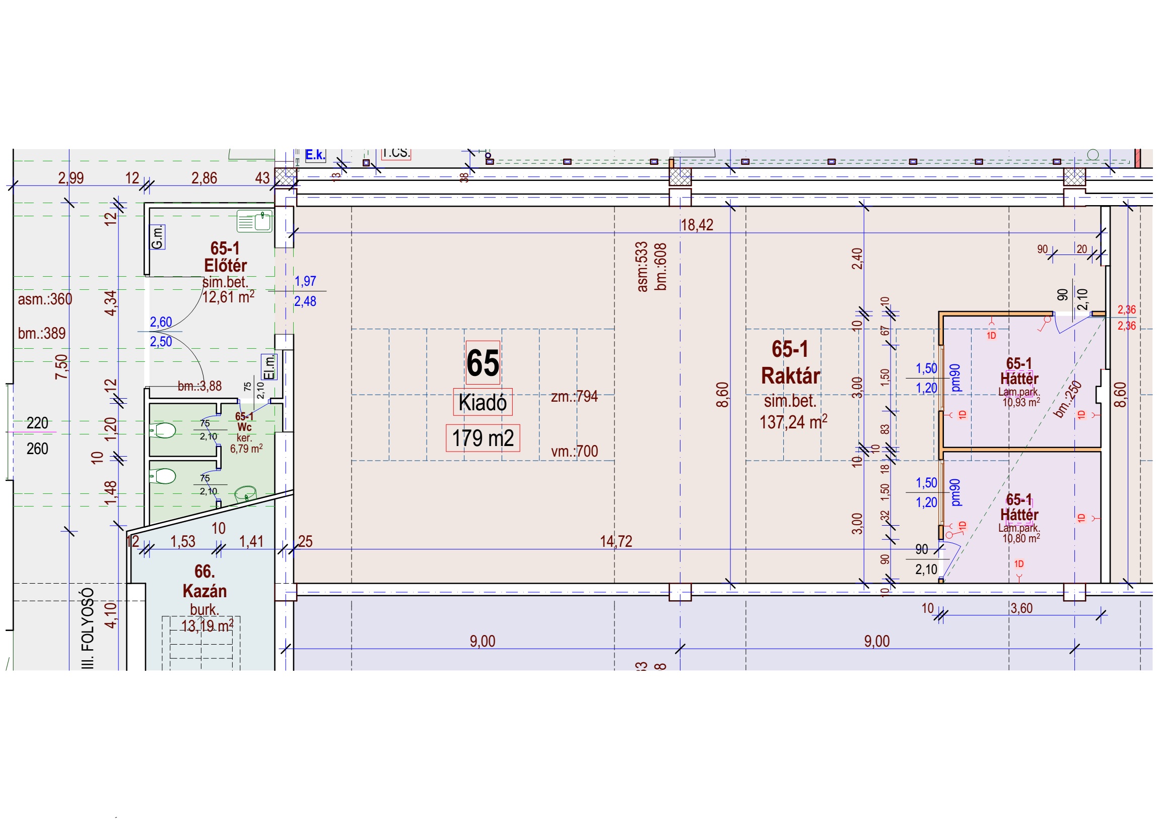
179 m² - Raktár
Leírás
Természetes megvilágítású felülvilágítós bérlemény.
Kiadó fűthető raktár, nagykereskedés vagy üzem helyiség az Üzleti központ 3. folyosón.
8,6 m széles, 6 m magas, saját vizesblokk és két háttér helyiség kialakítva. A folyosó furgonnal járható és targoncázható is.
Megközelíthető a Szentendrei út felől az 1. kapun vagy a Reményi Ede utca felől a 4. kapun keresztül a déli belső útról.
Érezte már, hogy egy jó lokáció megkönnyíti az életét?
Itt minden adott az üzleti tevékenységéhez, sőt még a szabadidő eltöltéséhez is. 500 férőhelyes parkoló, éttermek, kávézók, bio- és gluténmentes pékségek, nyomdák, papír-, írószer, villamosság, ruházat, könyvelőiroda, kommunikációs és média ügynökségek, dizájn és egyéb boltok, képzőművészeti galéria, fotóstúdió és sport. Tömegközlekedve és személygépkocsival is jól megközelíthető. Elképesztő lehetőségek üzleti szinergia kialakítására jól menő cégek között, impozáns környezetben.
Forduljon hozzánk bizalommal! Kollégáink igény szerint állnak rendelkezésére, hogy ideális bérleményt találjon nálunk reális áron.
Telefon: +36309962962
| Azonosító: | PP65-1 |
| Terület (m2): | 179 |
| Funkció: | Raktár |
| Állapot: | Felújított |
| Fekvés: | NY |
| Akciós: | |
| Kiadva: | |
| Terület: | 120-300 m2 |
| Golipark ajánlatban szerepel: |










